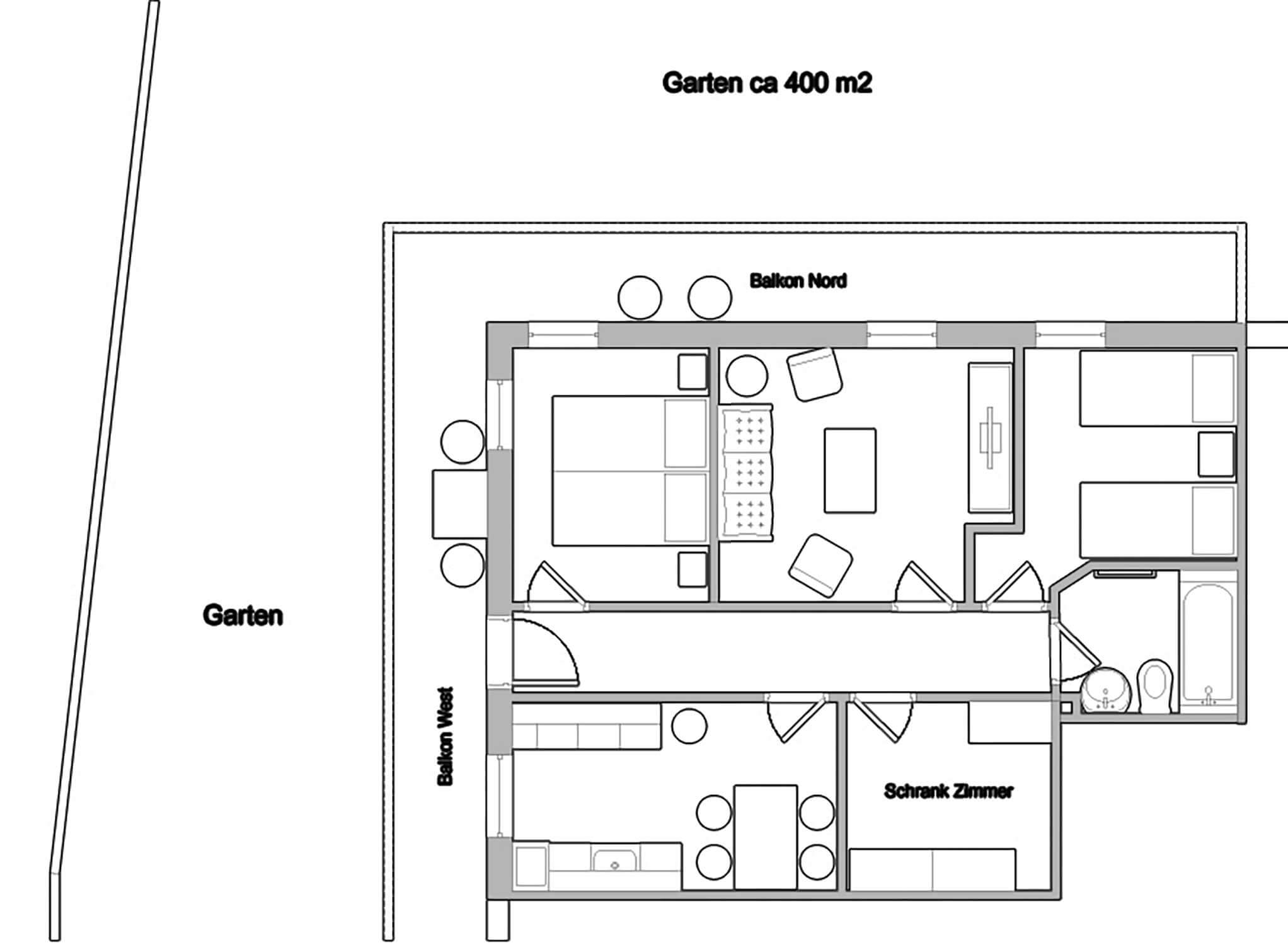
Die moderne, gemütliche 3.5 Zimmer Wohnung befindet sich im Dorfzentrum und ist für bis zu 4 Personen ausgelegt.
Die Wohnung wurde von Schweiz Tourismus mit 3*** zertifiziert
Zentraler geht nicht mehr…
Im Umkreis von 200 Metern befinden sich:
Arztpraxis, Bergbahnen, Coop Supermarkt, Volg Supermarkt, Millegga Parkhaus, Poststelle, Restaurants und das Tourismusbüro
Die 50 m2 grosse Wohnung bietet:
- Wohnzimmer mit Satelliten/TV
- Getrennte Küche mit Esstisch, Geschirrspüler, Backofen und Kaffeemaschine
- 2 Doppelschlafzimmer mit nebeineinander stehenden Betten
- Bad/Dusche/WC
- Separater Abstell- Schrankraum
- Free WiFi
- Balkon nach Westen & Norden
- Garten zur Mitbenutzung (300 m2)
- Kostenlose Mitbenutzung von Skiraum mit Schuhtrockner
- Nichtraucher Wohnung
- Haustiere sind nicht erlaubt
Preis pro Woche:
Winter:
Hauptsaison CHF 980.00
Nebensaison CHF 840.00
Sommer:
Hauptsaison CHF 840.00
Nebensaison CHF 770.00
Zuzüglich:
Endreinigung CHF 100.00
Bett- und Frotteewäsche CHF 18.00 pro Person
Kurtaxen (Erwachsene CHF 3.80/Tag, Kinder 6 bis 15 Jahre CHF 1.90/Tag)
Bei Fragen wenden Sie sich bitte direkt an die Vermieter:
Rudolf Walter
